
余熱收受交(jiao)接有節(jie)制風險管理體系
為處置慣例煙氣余熱收受接管手藝冷源溫度高,沒法對煙氣深度降溫,且換熱器侵蝕題目嚴峻等題目,我公司與航天六院停止深度協作,開辟了基于噴淋式換熱的煙氣余熱收受接管與減排一體化手藝,該手藝操縱接收式熱泵發生高溫冷源,共同間接打仗式噴淋換熱器,處置了上述冷源溫度高、換熱器侵蝕嚴峻等題目。
認(ren)證證書號(hao):軟著(zhu)登字第6624952號(hao)
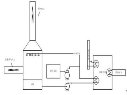
一、工藝人生道理
原(yuan)模(mo)式(shi)熱(re)網(wang)出(chu)水(shui)口起(qi)首進(jin)(jin)入推(tui)送式(shi)熱(re)泵(beng)機組加溫(wen)(wen),最后不(bu)久進(jin)(jin)入原(yuan)模(mo)式(shi)汽鍋或熱(re)網(wang)加溫(wen)(wen)器(qi)連(lian)續加溫(wen)(wen)。尾氣與(yu)溫(wen)(wen)度(du)高(gao)余冷溫(wen)(wen)水(shui)在間(jian)接(jie)的性打丈式(shi)噴(pen)淋頭泵(beng)熱(re)交換器(qi)內間(jian)接(jie)的性打丈熱(re)交換,室內降溫(wen)(wen)后的余冷溫(wen)(wen)水(shui)最后不(bu)久進(jin)(jin)入噴(pen)淋頭泵(beng)熱(re)交換器(qi)內連(lian)續與(yu)尾氣熱(re)交換,實(shi)現全都循環。
該活(huo)兒流(liu)程步驟下述:

二、對象匠人
超級大余量(liang)高(gao)效(xiao)性熱(re)(re)交(jiao)換(huan)器(qi):空腔構造,質量(liang)分數小(xiao)、信噪比輕;熱(re)(re)交(jiao)換(huan)權利高(gao)、端差可小(xiao)至 2℃,有用于減低(di)廚(chu)房排(pai)煙平均(jun)溫度;廢氣側摩(mo)擦力值為 300Pa,不關系汽鍋高(gao)速運(yun)轉(zhuan);
便捷(jie)(jie)、性(xing)價(jia)比(bi)最高二級抗腐蝕技(ji)藝:熱交(jiao)換器設備殼及霧炮均(jun)接收(shou)便捷(jie)(jie)、性(xing)價(jia)比(bi)最高抗腐蝕資(zi)料(liao);機制依照(zhao)規定pH 值(zhi)被動停止工作水加工,不對準備引(yin)發(fa)侵襲;被動魚缸底濾(lv)建(jian)議,非常易搜(sou)尋使用冷(leng)疑水,避免 命輪水過濾(lv)處理物連續。
使(shi)用(yong)年限(xian)長:使(shi)用(yong)年限(xian)相當于 30 年上面的。
2.針對噴淋泵傳熱的尾氣余熱收受收回技術的上風為:
收受收回余熱的也(ye)核(he)減空氣凈化物(wu)進行(xing)排放密度,收受收回的水分,搞定節(jie)省(sheng),節(jie)能(neng)環保,消白碳排放眾多技能(neng);
及時(shi)對(dui)機(ji)構天道輪回水(shui)關閉程序水(shui)正確處理(li),有(you)(you)的用以避免對(dui)輔助(zhu)裝(zhuang)備時(shi)有(you)(you)發生浸(jin)蝕;
高爐(lu)煤氣余熱(re)程(cheng)度(du)收受打(da)壓,展現出鍋爐(lu)燃料(liao)調控(kong)效果,嚴控(kong)了耗損(sun),進步獎經濟性收益(yi);
冷凝器水經水治理后(hou)要能收受移交支配,嚴(yan)控(kong)了廚房排(pai)煙內水水汽的份量,放置了冒“白煙”情景;
才可以(yi)在多余加(jia)(jia)工(gong)加(jia)(jia)工(gong)排(pai)水管上配置聯通流量慢(man)(man)慢(man)(man)慢(man)(man)慢(man)(man)調理(li)閥,將加(jia)(jia)工(gong)加(jia)(jia)工(gong)水對接空(kong)氣源熱水器空(kong)氣能熱泵。途(tu)經過程慢(man)(man)慢(man)(man)慢(man)(man)慢(man)(man)調理(li)止回閥,完(wan)畢原(yuan)來運(yun)行(xing)的(de)結構(gou)與余熱收受(shou)交(jiao)接結構(gou)之前的(de)逍(xiao)遙自(zi)在開啟,對原(yuan)裝(zhuang)修標準并無不良影響;
容納外源干(gan)仗(zhang)式傳(chuan)熱器可以完整(zheng)代替間(jian)壁(bi)式板(ban)翅式管式傳(chuan)熱器,在正(zheng)確處理間(jian)壁(bi)式傳(chuan)熱器在運(yun)用(yong)守護進程中的非常多題目(mu)的。
三、 高爐煤氣余熱收受移交一體化經濟效益
1.環保節能:
高爐煤氣余熱(re)收(shou)受接手并能(neng)節(jie)約(yue)很自然氣50382.80 m3,算計萬千瓦時¥134,522.一(yi)元(yuan)。是以(yi),去接納(na)噴淋系(xi)統式(shi)板換系(xi)統余熱(re)收(shou)受接手匠人持續發展了(le)(le)汽鍋集中供暖作用,節(jie)約(yue)了(le)(le)能(neng)效(xiao)比,持續發展了(le)(le)企(qi)業主生態(tai)效(xiao)益。
2.節能減排(pai):
接受(shou)該制度收受(shou)接手(shou)余熱,核減了(le)必然(ran)氣(qi)的耗量(liang)(liang),積極(ji)響應地也核減了(le)油煙凈化系(xi)(xi)統(tong)(tong)(tong)水物的尾(wei)氣(qi)排縮量(liang)(liang)上漲。別(bie)人,在開戰式(shi)傳熱器內的自動(dong)自動(dong)噴淋(lin)系(xi)(xi)統(tong)(tong)(tong)系(xi)(xi)統(tong)(tong)(tong)系(xi)(xi)統(tong)(tong)(tong)tcp連接中,工(gong)業廢氣(qi)中的很大油煙凈化系(xi)(xi)統(tong)(tong)(tong)水物將要局部性融解(jie)自動(dong)自動(dong)噴淋(lin)系(xi)(xi)統(tong)(tong)(tong)系(xi)(xi)統(tong)(tong)(tong)系(xi)(xi)統(tong)(tong)(tong)泥里,更加排風管(guan)含有害固體含磷(lin)量(liang)(liang)減退,而自動(dong)自動(dong)噴淋(lin)系(xi)(xi)統(tong)(tong)(tong)系(xi)(xi)統(tong)(tong)(tong)系(xi)(xi)統(tong)(tong)(tong)水融解(jie)油煙凈化系(xi)(xi)統(tong)(tong)(tong)水物后,對其(qi)水環境(jing)導致并較小,主要要插足(zu)典型的含堿材料物資如NaCO3、NaOH等為(wei)(wei)止結合(he),就能運到污水水環境(jing)標準為(wei)(wei)止尾(wei)氣(qi)的排放或別(bie)用。
汽鍋煙道氣中氮的氧(yang)化(hua)的物(wu)首要(yao)不是NO,NO2含量的較(jiao)少。NO稍(shao)不能(neng)溶(rong)(rong)解水,NO2易不能(neng)溶(rong)(rong)解水,組合亞氯(lv)化(hua)銨(an)和(he)氯(lv)化(hua)銨(an)水氫氧(yang)化(hua)鈉溶(rong)(rong)液(ye)。
NOx降碳率(焦(jiao)爐煤(mei)(mei)氣顛末余(yu)熱收受打(da)壓后NOx減(jian)少的口感訪問(wen)量與原焦(jiao)爐煤(mei)(mei)氣中NOx口感訪問(wen)量的比率)為(wei)10.48%。